Projekte
Leistungen
Über mich
Kontakt
Projekte
Leistungen
Über mich
Kontakt
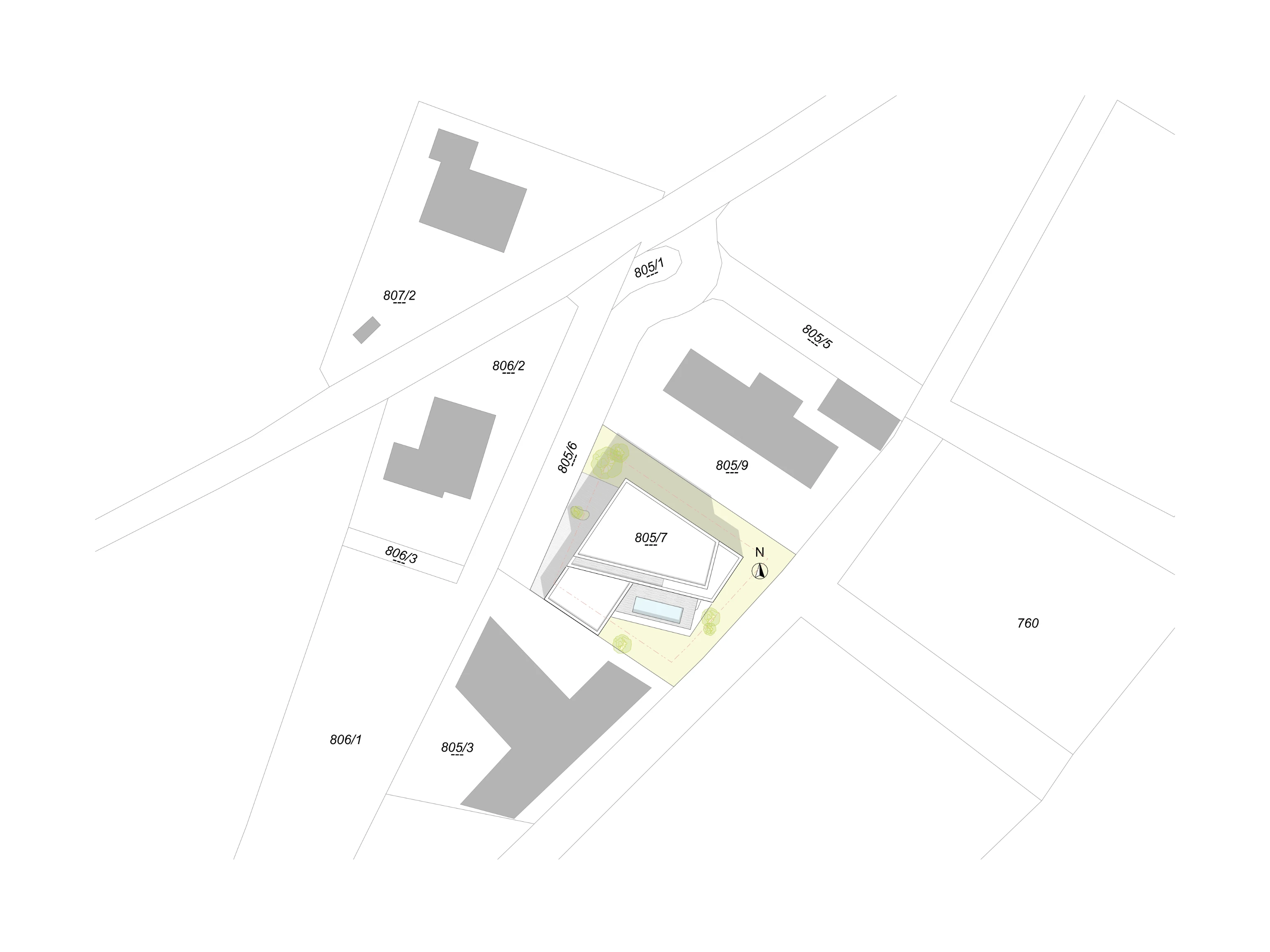
Neubau
Wohnhaus B - Hartkirchen
Wohnhaus B - Hartkirchen
Auftraggeber
Privat
Objekttyp
Wohnhaus
Leistungen
Vorentwurf | Entwurf | Einreichplanung
KONTAKTIEREN SIE MICH